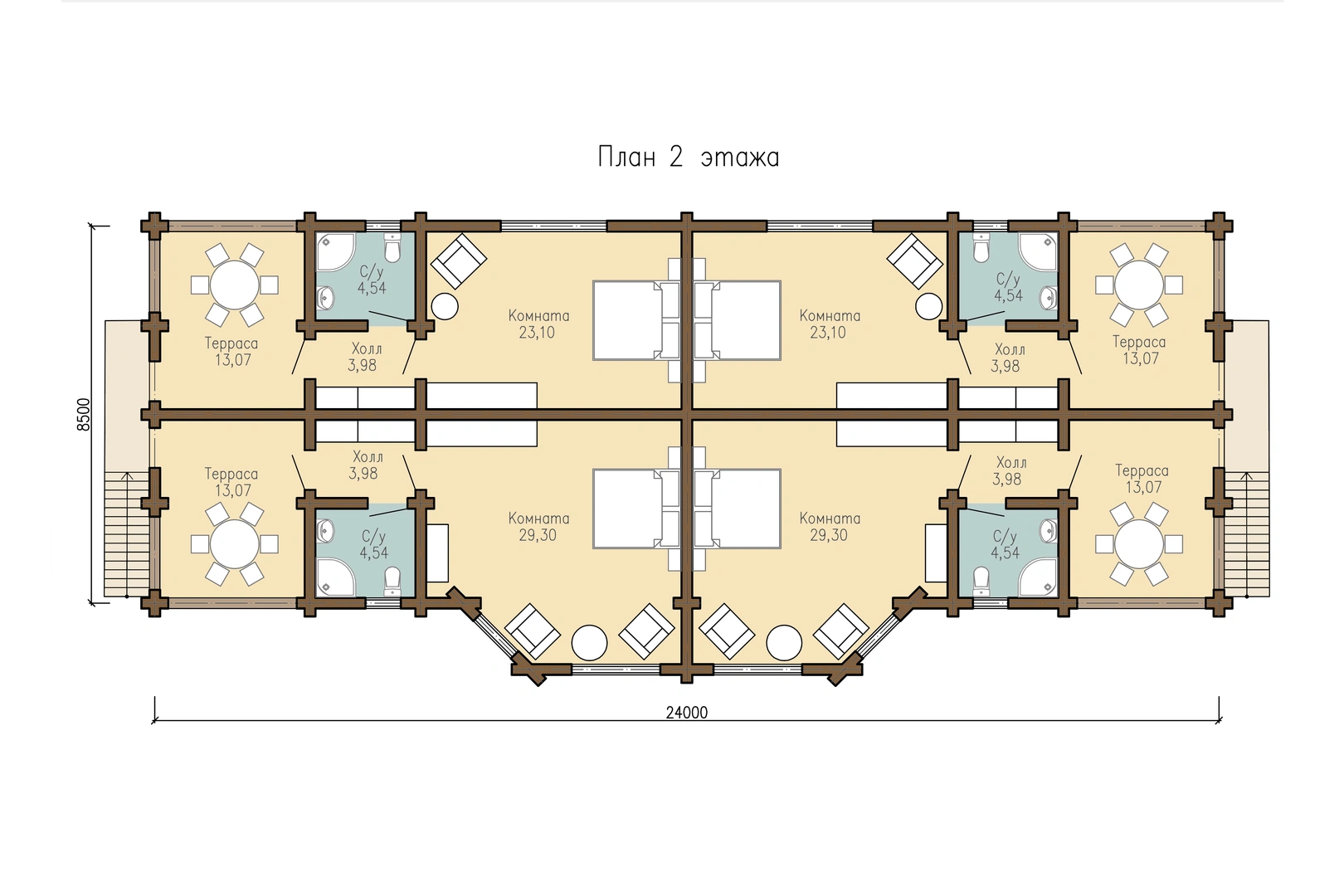
Отель из оцилиндрованного бревна 8 х 24 м №5
- Площадь: 382м2
- Размеры: 8 х 24м
- Этажей: 2
- Комнат: 8
- Санузлов: 8
Уникальная технология камерной сушки бревна
Мы сушим по уникальной технологии: бревно в коре. Только после этого изготавливаем детали из сухого бревна. Такой способ позволяет избежать изменения геометрии деталей при сушке и как следствие - исключает зазоры в чашках.
Строительство в 5 раз быстрееТ.к. не нужно ждать сушки и усадки сруба целый год
Идеальная сборкаТ.к. при такой сушке нет зазоров между деталями
80% клиентовВыбирают эту опцию, т.е. она - недорогая, но очень эффективная
Стоимость строительства:
от 7 004 332 ₽
Базовый комплект “под отделку”


| Наименование работ | Дом “Базовый пакет” от7 004 332₽ | Дом “Под ключ” от14 008 664₽ |
|---|---|---|
| Индивидуальное проектирование дома | ||
| Фундамент в зависимости от типа грунта и пожеланий заказчика | ||
| Стеновой материал - оциндрованные элементы из хвойных пород изготовленные на станке токарно-роторного типа ОФ-300цм с выбранными продольными и поперечными пазами согласно проектной спецификации | ||
| Антисептирование деталей сруба методом погружения в ванну (PROSEPT) на 10 мин | ||
| Выполнение угловых чаш | ||
| Перекрытие - брус 100х200мм | ||
| Стропила-обрезная доска сеч. 50х200мм | ||
| Стропила-обрезная доска сеч. 50х150 мм | ||
| Вентиляционный брусок сеч. 50х50 мм | ||
| Ветровые связи,заглушки - доска сеч. 50х150мм | ||
| Обрешетка-обрезная доска толщ. 25 мм | ||
| Подкладная доска 50х200мм | ||
| Материал на леса - обрезная доска сеч. 50х100мм | ||
| Материал на леса - необрезная доска толщ. 40мм | ||
| Материал на леса - необрезная доска толщ. 25мм | ||
| Деревянный нагель сечением 25х25мм | ||
| Межвенцовый утеплитель "Политерм" | ||
| Комплект материалов для сруба и кровли: стеклоизол ХП 10м, ветрозащитная мембрана АМ, скобы строительные 8х300 (стыки бревен), скользящие опоры для стропил, пластины металические 90х210 толщ. 2 мм (конек), болты, гайки, шайбы, шпильки, уголки мет., лифты регулировочные М24, саморезы, гвозди, канат диам. 16мм, скобки к степлеру, ULTRA PROSEPT(обработка подкладной доски), кисти, перчатки | ||
| Пакетирование и погрузочные работы | ||
| Устройство горизонтальной гидроизоляции фундамента и установка подкладной доски с обработкой Prosept Ultra (невымываемый) | ||
| Сборка стен сруба из оцилиндрованных бревен с укладкой межвенцового утеплителя и сверлением отверстий под нагеля | ||
| Установка опорных столбов | ||
| Установка балок перекрытия с врезкой в стены и утеплением торцов | ||
| Монтаж стропильной системы с установкой ветрозащитной мембранны и вент. бруска с обрешеткой | ||
| Устройство кровли под рубероид (материал заказчика) | ||
| Обработка огнебиозащитой балок перекрытия и стропил (огнебиопросепт) | ||
| Разгрузочные работы с краном Заказчика | ||
| Транспортно-коммандировочные расходы бригады | ||
| Устройство постоянной мягкой кровли кровли | ||
| Монтаж водосточной системы. | ||
| Подшив карнизов кровли вагонкой. | ||
| Шлифовка стен снаружи, торцов сруба | ||
| Шлифовка стен внутри, торцов сруба | ||
| Устройство пола террасы, крыльца, балкона ( лаги , доска пола). | ||
| Устройство перекрытия фундамента(черновой подшив, гидро-пароизоляция, утепление 150, лаги, доска пола) | ||
| Устройство перекрытия 1, этажей (черновой подшив, гидро-пароизоляция, утепление 50, лаги, доска пола) | ||
| Подшив потолков 1 этажа и 2 этажа вагонкой | ||
| Грунтовка стен сруба снаружи за 1 раз. | ||
| Окраска стен сруба снаружи за 2 раза. | ||
| Окраска стен сруба внутри за 2 раза. | ||
| Окраска карнизов, лобовых досок за 2 раза | ||
| Окраска наличников за 2 раза | ||
| Окраска потолка 1 и 2 этажей за 2 раза (32,4кв.м + 50 кв.м) | ||
| Окраска пола за 4 раза | ||
| Подготовка оконных и дверных проемов (торцовка-подгон по размеру, устройство паза монтажного бруска) | ||
| Изготовление и установка фальш-коробок. | ||
| Установка окон с подоконником и обналичкой | ||
| Установка дверей с обналичкой | ||
| Устройство цоколя (каркас, обрешетка и обшивка панелями) | ||
| Установка лестницы на второй этаж | ||
| Устройство лестницы уличной | ||
| Электричество и электрооборудование | ||
| Водоснабжение и водоотведение (канализация) | ||
| Отопление | ||
| Вентиляция |
Описание проекта
Отель на 8 номеров.
Планировкоа в себя вкючает: 8 номеров общей площадью
Особенности
Слаутин Николай ВладимировичГлавный инженер
Вы можете заказать мою консультацию по этому проекту
Получить консультациюСлаутин Николай ВладимировичГлавный инженер
Вы можете заказать мою консультацию по этому проекту
Получить консультациюПохожие проекты
Отзывы наших клиентов
Все отзывы (34)Есть своя смета на строительство?
Мы предложим меньшую стоимость без потери качества.
Как мы экономим?
- Оптовые скидки на проверенные материалы от партнеров (экономия до 30%);
- Оптимальный подбор материалов и поставщиков (экономия до 15%);
- Налаженный рабочий процесс без потери времени (экономия до 20%).

Вопросы-ответы
Дом или баня из бревна строится в 2 этапа.
1 этап: фундамент, стены, перекрытия, временная крыша. Стоимость фундаментов зависит от его типа и геологических условий Вашего участка. Затем срубу выстоять полгода, дать усадке и приступаем ко 2 этапу.
2 этап: отделочные и инженерные работы. Стоимость 2 этапа после согласования материалов, проектных работ, исходя из Ваших технических условий.
Стоимость под ключ зависит от инженерно-технических условий на Вашем объекте, от выбранных отделочных материалов. Примерно, на сегодня составляет от 40 тыс. руб. за 1 кв.м общей площади.
При изготовлении сруба из сухого бревна камерной сушки не надо ждать усадки, сушки полгода и более. Возможно, сразу приступать к отделочным и инженерным работам, строить под ключ.
Можно приобрести только материалы, но рекомендуем, чтобы сборку выполняли специалисты с опытом работы от 5 лет монтажа деревянных домов из оцилиндрованных бревен, знали, как грамотно поставить сруб на фундамент, чтобы нижние венцы защитить, правила установки перекрытий, чтобы потом не промерзало в этом месте, монтаж сруба на нагеля с четкой геометрией по вертикали и горизонту, правильно прокладывая межвенцовый утеплитель, установить грамотно стропильную систему, используя шарнирно – скользящую систему крепления конструкций, для равномерной усадки сруба, правильно поставить колонны, используя компенсаторы усадки и другие нюансы. Из опыта известно при самостоятельной сборке сруба Заказчик в дальнейшем сталкивается с большими проблемами с бригадами и качеством, ведет к значительному удорожанию стоимости дома и к нервным переживаниям.
1 Стоимость фундамента изначально указать не можем, зависит от геологии, от уровня грунтовых вод и от типа фундамента. Стоимость его уточняется после проектных работ. Можете самостоятельно по нашим чертежам изготовить фундамент или мы сделаем. Под деревянные дома, бани применяются не дорогие фундаменты – это обычно ленточный мелкого заглубления или свайный с обвязкой из доски 4х(50х200h), стянутыми шпильками.
Первый заключаем договор на проектные работы. После выполнения проектных работ заключаем договор на изготовление материала и монтаж. Оплата производится по договору частями поэтапно. 1. Предоплата 50 % от общей стоимости материалов 2. Оплата после доставки 1 машины материалов (зависит от количества машин). 3. Оплата 50 % от стоимости монтажа - начало монтажа. 4. Оплата 100 % после изготовления всего объема материалов, перед отгрузкой последней машины материалов. 5. Оплата за монтаж 30% от стоимости монтажа после сборки сруба. 6. Окончательная оплата после выполнения всех работ.
Договора заключаем дистанционно, обмениваемся документами по электронной почте и по почте России.
Под деревянную баню применяются не дорогие фундаменты – это обычно ленточный жб мелкого заглубления или свайный с обвязкой.
Заказ надо делать зимой. Выполнить проектные работы, получить точную смету, заключить договор на строительство дома. Зимой мы готовим лес для Вас. Непосредственно перед строительством дома или бани мы изготавливаем детали сруба из оцилиндрованного бревна, доставляем к Вам и начинаем сразу собирать. Долго хранить бревно не надо, желательно сразу собирать, чтобы сушка бревна происходила в срубе дома.
Не обязательно. 80 % договоров на изготовление и строительство дома или бани заключаем дистанционно. Документы отправим почтой России. Есть представительства в Москве, в Курске, в Ростове-на-Дону. При желании и возможности приехать в Киров, ждем Вас , встретим, примем, проведем экскурсию на производство, в офис и сделаем скидку на строительство дома.
Срок изготовления оцилиндрованного бревна зависит от объема заказа и загрузки производства на данный момент. Уточнить по телефону 8-800-301-84-88. Машину материалов объемом до 32 кубов сырого или до 45 кубов сухого материала готовим 2-3 дня.
