Баня-дом из оцилиндрованного бревна 7 х 12 м
- Площадь: 78м2
- Размеры: 7 х 12м
- Этажей: 1
- Комнат: 1
- Санузлов: 1
Мы сушим по уникальной технологии: бревно в коре. Только после этого изготавливаем детали из сухого бревна. Такой способ позволяет избежать изменения геометрии деталей при сушке и как следствие - исключает зазоры в чашках.
Строительство в 5 раз быстрееТ.к. не нужно ждать сушки и усадки сруба целый год
Идеальная сборкаТ.к. при такой сушке нет зазоров между деталями
80% клиентовВыбирают эту опцию, т.е. она - недорогая, но очень эффективная
Базовый комплект “под отделку”

| Наименование работ | Дом “Базовый пакет” от2 008 777₽ | Дом “Под ключ” от4 017 554₽ |
|---|---|---|
| Индивидуальное проектирование дома | ||
| Фундамент в зависимости от типа грунта и пожеланий заказчика | ||
| Стеновой материал - оциндрованные элементы из хвойных пород изготовленные на станке токарно-роторного типа ОФ-300цм с выбранными продольными и поперечными пазами согласно проектной спецификации | ||
| Антисептирование деталей сруба методом погружения в ванну (PROSEPT) на 10 мин | ||
| Выполнение угловых чаш | ||
| Перекрытие - брус 100х200мм | ||
| Стропила-обрезная доска сеч. 50х200мм | ||
| Стропила-обрезная доска сеч. 50х150 мм | ||
| Вентиляционный брусок сеч. 50х50 мм | ||
| Ветровые связи,заглушки - доска сеч. 50х150мм | ||
| Обрешетка-обрезная доска толщ. 25 мм | ||
| Подкладная доска 50х200мм | ||
| Материал на леса - обрезная доска сеч. 50х100мм | ||
| Материал на леса - необрезная доска толщ. 40мм | ||
| Материал на леса - необрезная доска толщ. 25мм | ||
| Деревянный нагель сечением 25х25мм | ||
| Межвенцовый утеплитель "Политерм" | ||
| Комплект материалов для сруба и кровли: стеклоизол ХП 10м, ветрозащитная мембрана АМ, скобы строительные 8х300 (стыки бревен), скользящие опоры для стропил, пластины металические 90х210 толщ. 2 мм (конек), болты, гайки, шайбы, шпильки, уголки мет., лифты регулировочные М24, саморезы, гвозди, канат диам. 16мм, скобки к степлеру, ULTRA PROSEPT(обработка подкладной доски), кисти, перчатки | ||
| Пакетирование и погрузочные работы | ||
| Устройство горизонтальной гидроизоляции фундамента и установка подкладной доски с обработкой Prosept Ultra (невымываемый) | ||
| Сборка стен сруба из оцилиндрованных бревен с укладкой межвенцового утеплителя и сверлением отверстий под нагеля | ||
| Установка опорных столбов | ||
| Установка балок перекрытия с врезкой в стены и утеплением торцов | ||
| Монтаж стропильной системы с установкой ветрозащитной мембранны и вент. бруска с обрешеткой | ||
| Устройство кровли под рубероид (материал заказчика) | ||
| Обработка огнебиозащитой балок перекрытия и стропил (огнебиопросепт) | ||
| Разгрузочные работы с краном Заказчика | ||
| Транспортно-коммандировочные расходы бригады | ||
| Устройство постоянной мягкой кровли кровли | ||
| Монтаж водосточной системы. | ||
| Подшив карнизов кровли вагонкой. | ||
| Шлифовка стен снаружи, торцов сруба | ||
| Шлифовка стен внутри, торцов сруба | ||
| Устройство пола террасы, крыльца, балкона ( лаги , доска пола). | ||
| Устройство перекрытия фундамента(черновой подшив, гидро-пароизоляция, утепление 150, лаги, доска пола) | ||
| Устройство перекрытия 1, этажей (черновой подшив, гидро-пароизоляция, утепление 50, лаги, доска пола) | ||
| Подшив потолков 1 этажа и 2 этажа вагонкой | ||
| Грунтовка стен сруба снаружи за 1 раз. | ||
| Окраска стен сруба снаружи за 2 раза. | ||
| Окраска стен сруба внутри за 2 раза. | ||
| Окраска карнизов, лобовых досок за 2 раза | ||
| Окраска наличников за 2 раза | ||
| Окраска потолка 1 и 2 этажей за 2 раза (32,4кв.м + 50 кв.м) | ||
| Окраска пола за 4 раза | ||
| Подготовка оконных и дверных проемов (торцовка-подгон по размеру, устройство паза монтажного бруска) | ||
| Изготовление и установка фальш-коробок. | ||
| Установка окон с подоконником и обналичкой | ||
| Установка дверей с обналичкой | ||
| Устройство цоколя (каркас, обрешетка и обшивка панелями) | ||
| Установка лестницы на второй этаж | ||
| Устройство лестницы уличной | ||
| Электричество и электрооборудование | ||
| Водоснабжение и водоотведение (канализация) | ||
| Отопление | ||
| Вентиляция |
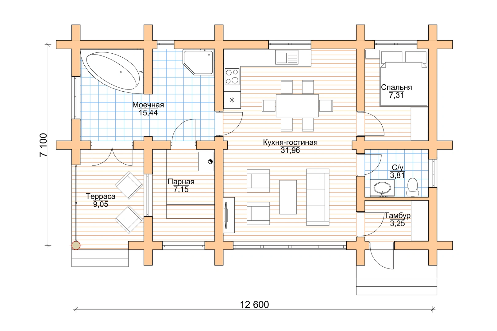
Баня - дом 55. Общая площадь бани 77,97 кв.м,
Может использоваться, как уютный дачный дом. В данном проекте кровля односкатная дёрновая с травяным (зелёным) покрытием.
Проектом предусмотрены: терраса - 9,05 м2; тамбур - 3,25 м2; гостиная, совмещенная с кухней - 31,96 м2; санузел - 3,81 м2; спальня - 7,31 м2; моечная - 15,44 м2; парная - 7,15 м2. Такой проект прекрасно подойдет для начальной застройки на пустом участке.
Вы можете заказать мою консультацию по этому проекту
Получить консультациюВы можете заказать мою консультацию по этому проекту
Получить консультациюМы предложим меньшую стоимость без потери качества.
- Оптовые скидки на проверенные материалы от партнеров (экономия до 30%);
- Оптимальный подбор материалов и поставщиков (экономия до 15%);
- Налаженный рабочий процесс без потери времени (экономия до 20%).

